Giới thiệu cửa đi mở quay xingfa 55
Cửa đi nhôm Nam Sung đa dạng thiết kế, mẫu mã, màu sắc, phục vụ cho đa dạng các kiểu công trình, kiến trúc và linh hoạt các vị trí sử dụng.
Với dạng cửa đi mở này, có thể kết hợp nhiều kiểu cửa khác nhau: cửa 1 cánh + lá sách, cửa 1 cánh + lambri + fix, cửa 2 cánh mở 2 chiều,…


Thông số kỹ thuật
Độ dày thanh profile: 1.2 – 2.0 mm.
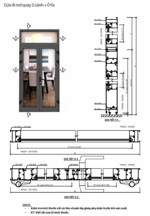
Thiết kế bên trong khoang trống có nhiều đường gân sole nhau với tác dụng chịu lực giúp toàn
bộ khối cửa cứng cáp.
Phạm vi sử dụng : Nhà phố, biệt thự, chung cư, cao ốc văn phòng
Cửa đi mở quay hệ NS-55 được phân loại, bao gồm:
– Cửa đi mở quay, chân cánh ghép 45° (1 cánh, 2 cánh, 4 cánh,…)
– Cửa đi mở quay, chân cánh ghép 90° (1 cánh, 2 cánh, 4 cánh,…)
Ưu điểm cửa đi mở quay NS-55
Cửa có độ bền, màu sắc vượt thời gian.
Tương thích với nhiều phụ kiện, kính, ốc vít inox, gioăng, keo,…
Cách âm, cách nhiệt tốt. Đóng mở nhẹ nhàng, linh hoạt.
Kín khí, kín nước tốt.
Đa dạng chủng loại, kích thước.
Ít phải sửa chữa, bảo hành, bảo dưỡng trong quá trình sử dụng.

Ứng dụng của cửa đi mở quay xingfa hệ 55
Cửa đi mở quay xingfa hệ 55 có thể được ứng dụng rộng rãi trong nhiều loại công trình khác nhau, nhờ vào tính năng ưu việt và thiết kế đa dạng. Dưới đây là các ứng dụng cụ thể:
Nhà ở dân dụng:
- Phòng khách: Cửa đi mở quay tạo không gian rộng rãi, kết nối liền mạch giữa phòng khách và không gian ngoài trời như sân vườn, ban công, tạo cảm giác thoáng đãng và thoải mái.
- Phòng ngủ: Sử dụng cửa đi mở quay giúp tăng cường ánh sáng tự nhiên và tầm nhìn, tạo cảm giác thoáng mát và dễ chịu.
Biệt thự và nhà phố:
- Mặt tiền: Cửa đi mở quay nhôm Xingfa hệ 55 góp phần tạo nên mặt tiền sang trọng, hiện đại và đẳng cấp cho các căn biệt thự và nhà phố.
- Lối đi ra sân vườn: Thiết kế mở rộng tối đa, giúp kết nối không gian trong nhà với khu vực sân vườn, tạo nên không gian sống mở và gần gũi với thiên nhiên.
Công trình thương mại:
- Showroom và cửa hàng: Cửa đi mở quay giúp mở rộng không gian trưng bày, thu hút khách hàng và tạo điều kiện thuận lợi cho việc kinh doanh.
- Trung tâm thương mại: Tạo lối đi thông thoáng, thuận tiện cho khách hàng di chuyển và mua sắm.
Khách sạn và resort:
- Phòng nghỉ: Cửa đi mở quay nhôm Xingfa hệ 55 được sử dụng để mở rộng không gian phòng nghỉ, giúp khách hàng tận hưởng tầm nhìn đẹp và không gian thoáng đãng.
- Khu vực chung: Sử dụng tại các khu vực chung như sảnh đón khách, nhà hàng, quán café để tạo không gian mở, thân thiện và thoải mái.
Văn phòng và tòa nhà công sở:
- Phòng họp: Cửa đi mở quay tạo không gian phòng họp rộng rãi, thông thoáng, thúc đẩy sự sáng tạo và hiệu quả làm việc.
- Lối đi nội bộ: Giúp tạo sự kết nối giữa các khu vực làm việc, tăng cường sự tương tác và tiện lợi cho nhân viên.

Lời kết
Nhôm thanh định hình rõ ràng là một lựa chọn vật liệu thông minh, bền vững và đầy tiềm năng cho kiến trúc hiện đại. Hy vọng rằng, qua bài viết chi tiết này, các quý vị chủ thầu, kiến trúc sư và đối tác đã có một cái nhìn sâu sắc và toàn diện nhất để tự tin đưa ra quyết định cho công trình của mình.
Hành trình tạo nên những công trình kiệt tác đòi hỏi sự kết hợp giữa tầm nhìn thiết kế và chất lượng vật liệu đỉnh cao. Nhôm Thanh Bình cam kết trở thành người đồng hành đáng tin cậy trên hành trình đó, mang đến những sản phẩm nhôm thanh định hình từ các thương hiệu lớn như, Nam Sung, Tiger Awin, … cùng dịch vụ hỗ trợ chuyên nghiệp hàng đầu tại Cần Thơ và toàn bộ khu vực Miền Tây.
Nhôm Thanh Bình – nhà phân phối nhôm thanh định hình hàng đầu tại Cần Thơ, để được tư vấn và báo giá chi tiết về các sản phẩm. Đội ngũ của chúng tôi sẵn sàng hỗ trợ từ thiết kế đến thi công, đảm bảo mang lại giải pháp tối ưu cho công trình của bạn. Liên hệ qua fanpage: Nhôm Thanh Bình để được hỗ trợ tư vấn.
Xem thêm:
- Cửa đi lùa 95 Plus: Lựa chọn cửa quen thuộc cho phòng ngủ, nhà vệ sinh
- Cửa đi lùa 93: Sự trở lại trong các thiết kế
- Cửa xếp trượt: Ứng dụng trong các công trình dân dụng
Đừng ngần ngại, hãy liên hệ ngay với đội ngũ chuyên gia của Nhôm Thanh Bình để nhận tư vấn kỹ thuật và báo giá tốt nhất cho dự án của bạn!
- Hotline/Zalo: 098 866 4755
- Email: dimarketing.nhomthanhbinh@gmail.com
- Địa chỉ công ty: 91 đường 3/2 ( Đầu đường Trần Hoàng Na mới ) , Phường Tân An, Thành phố Cần Thơ




Đánh giá
Chưa có đánh giá nào.